PROPERTY 受託物件

新横浜プラントビル

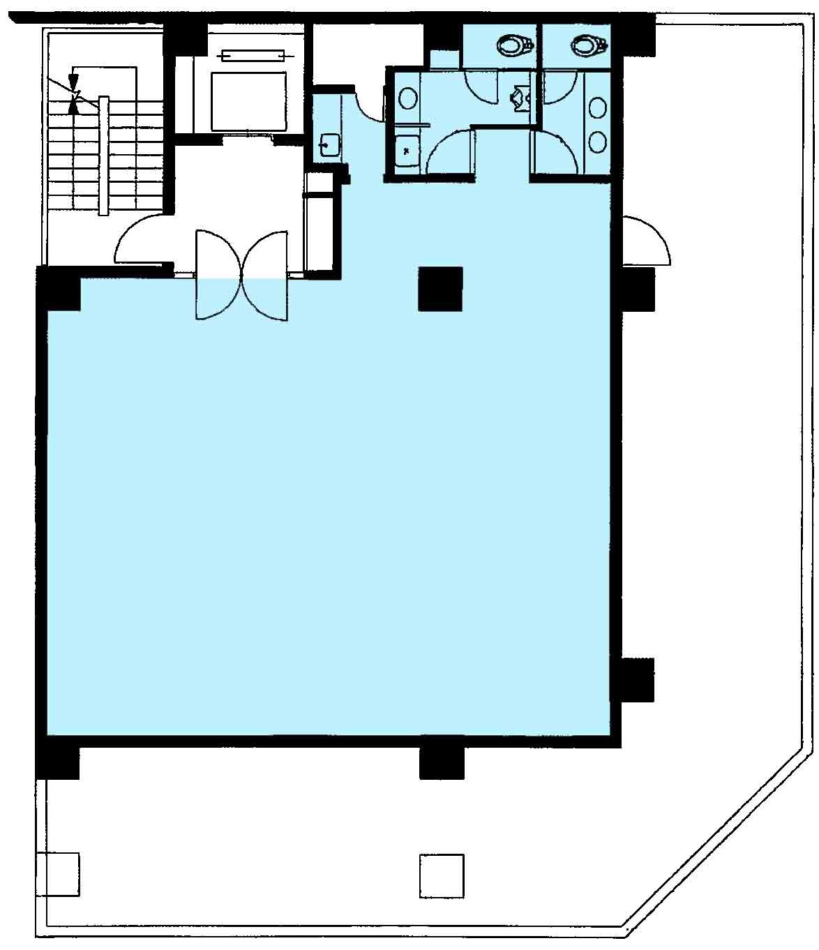
画像をクリックして拡大する画像をクリックして拡大する

画像をタップして拡大する画像をタップして拡大する

テナント募集概要 pdf

物件名 新横浜プラントビル
所在地 神奈川県横浜市 港北区新横浜2-7-1
構造 鉄骨鉄筋コンクリート造 陸屋根
竣工 1993年10月
規模 地上9階建
フロア面積 9階     37.00坪
8階     54.21坪
7階     61.41坪   
3階~5階 各61.43坪
2階・6階 各61.74坪
1階     13.41坪
備考
情報更新日 2026年02月12日

物件一覧に戻る

  • プロパティマネジメント(PM)ビルオーナー代行

    プロパティ
    マネジメント(PM)
    ビルオーナー代行

    オフィスの賃貸管理 をサポート

    1. テナントリーシング
    2. 入居者管理
    3. 工事監理

    詳しく見る

  • テナントリーシング

    テナント
    リーシング

    専門のリーシング
    スタッフが親身に対応

    1. マーケット分析
    2. テナント募集業務
    3. 賃貸条件交渉

    詳しく見る

  • ビルメンテナンス(BM)

    ビルメンテナンス
    (BM)

    設備などの管理を
    サポート

    1. 設備
    2. 清掃
    3. 警備

    詳しく見る

  • オフィスマネジメント(レイアウト・FM)

    オフィスマネジメント
    (レイアウト・FM)

    テナントさまのオフィス活用をサポート

    1. レイアウト
    2. オフィス配置効率化
    3. 移転にかかわる全て

    詳しく見る

  • 建物・設備

    建物・設備
    工事

    更新・リニューアル工事を提案・監理

    1. 建物・設備の劣化診断
    2. 更新工事
    3. リニューアル工事

    詳しく見る

  • 不動産デューデリジェンス

    不動産
    デューデリジェンス

    建物の物理的状況の 調査・レポート

    1. 遵法性調査
    2. 建築関連調査
    3. 設備調査

    詳しく見る

  • コンサルティング

    コンサル
    ティング

    ビル経営に関わる
    全てのご相談

    1. 当社が有する幅広い専門的知識やノウハウ等を駆使

    詳しく見る

お問い合わせ