PROPERTY 受託物件

ASKビル

画像をクリックして拡大する画像をクリックして拡大する

画像をタップして拡大する画像をタップして拡大する

物件名 ASKビル
所在地 東京都江東区 東陽2-4-46
構造 鉄筋コンクリート造
竣工 1989年7月
規模 地上5階建
フロア面積 5階   149.24坪
3~4階 156.11坪
2階   168.90坪
1階    49.67坪
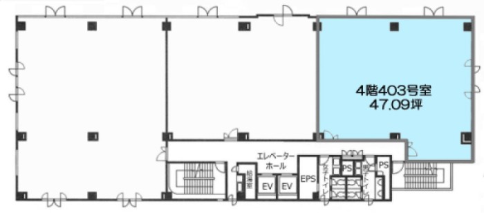
備考 ※間取り図は、今回の募集区画「4階403号室」となります。
情報更新日 2026年04月14日

物件一覧に戻る

  • プロパティマネジメント(PM)ビルオーナー代行

    プロパティ
    マネジメント(PM)
    ビルオーナー代行

    オフィスの賃貸管理 をサポート

    1. テナントリーシング
    2. 入居者管理
    3. 工事監理

    詳しく見る

  • テナントリーシング

    テナント
    リーシング

    専門のリーシング
    スタッフが親身に対応

    1. マーケット分析
    2. テナント募集業務
    3. 賃貸条件交渉

    詳しく見る

  • ビルメンテナンス(BM)

    ビルメンテナンス
    (BM)

    設備などの管理を
    サポート

    1. 設備
    2. 清掃
    3. 警備

    詳しく見る

  • オフィスマネジメント(レイアウト・FM)

    オフィスマネジメント
    (レイアウト・FM)

    テナントさまのオフィス活用をサポート

    1. レイアウト
    2. オフィス配置効率化
    3. 移転にかかわる全て

    詳しく見る

  • 建物・設備

    建物・設備
    工事

    更新・リニューアル工事を提案・監理

    1. 建物・設備の劣化診断
    2. 更新工事
    3. リニューアル工事

    詳しく見る

  • 不動産デューデリジェンス

    不動産
    デューデリジェンス

    建物の物理的状況の 調査・レポート

    1. 遵法性調査
    2. 建築関連調査
    3. 設備調査

    詳しく見る

  • コンサルティング

    コンサル
    ティング

    ビル経営に関わる
    全てのご相談

    1. 当社が有する幅広い専門的知識やノウハウ等を駆使

    詳しく見る

お問い合わせ